A-A-1250
September 18, 1980
COMMERCIAL ITEM DESCRIPTION
CAPS, WOOD FRAME CONSTRUCTION
FOR EXPORT SKIDS
The General Services Administration has authorized the use of this
Commercial Item Description in preference to Federal Specification
PPP-S-1853, Type II, Class 3.
This commercial item description covers commercial type wood caps which are used for export shipping.
Salient characteristics:
The caps shall be made from wood that meets the No.2 common or standard grade of the rules governing the specific specie and type lumber used. The lumber shall be fastened together using fasteners that are the normal commercial fasteners for such caps.
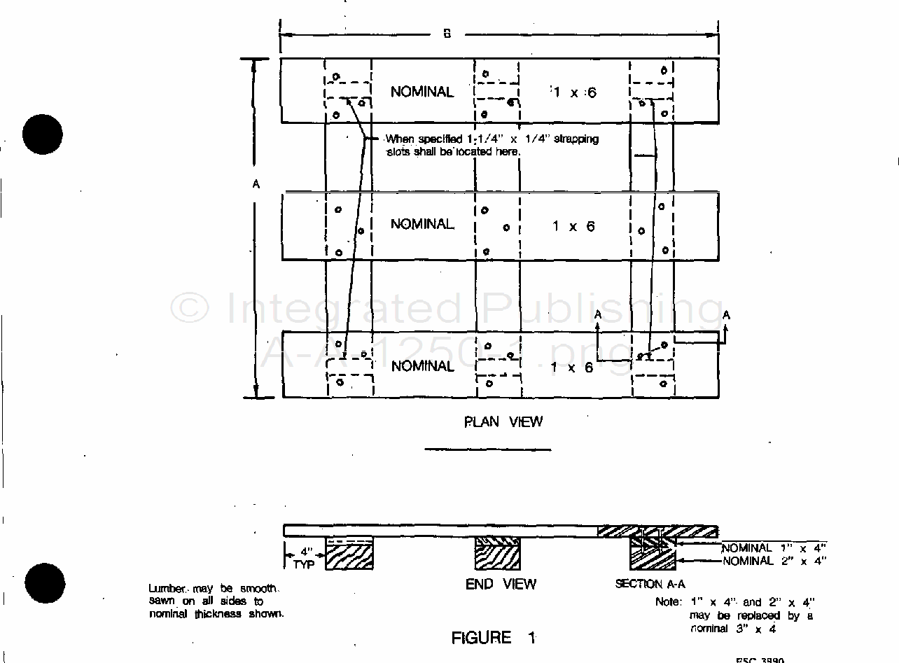
The caps shall be as described below and in figure 1 with sizes shown in table 1.
|
Table 1 |
|
|
Size No. |
Dim. A&B |
|
1 |
48-1/2 x 38-1/2 |
|
2 |
49-1/2 x 45 |
Cap shall have two nominal 1 x 6 inch boards as ends and two nominal 1 x 6 inch boards as sides. The side board shall overlap the end boards. The sides and ends shall be fastened together (nailed) with 6 inch faces vertical and shall be reinforced with steel strapping nailed around the corners. The top shall consist of five nominal 1 x 6 inch boards equally spaced in the same direction as the end boards and long enough for the ends to be flush with the outside edge of the sides. The top board shall be fastened both to the end boards. (See figure 1).

For Parts Inquires call Parts Hangar, Inc (727) 493-0744
© Copyright 2015 Integrated Publishing, Inc.
A Service Disabled Veteran Owned Small Business